COMMON SENSE
疏通常识
时间:2024-06-22 00:20:16
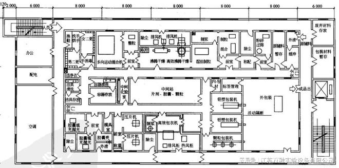
1. 车间布置设计包括两方面内容,一是指有制剂车间的工厂与周围环境的布局和工厂本身制剂车间与其他车间之间的布局,称为工厂布置,二是指车间内部设备等的布置,称为车间设备布置。

2. 在开始车加你布置设计前首先要收集设计依据和原始资料,包括明确产品大纲和生产规模,厂区位置和水文气象地址资料,然后做为多方比较,确定流程和布置。3. 由于制剂厂的产品室一种防治人类疾病,增强人体体质的特殊产品,因此制剂车间布置时,除了要遵循一般化工车间布置原则外,还需遵循一些特殊原则。4. 车间布置与工艺流程,设备选型有着密切的关系,当流程,设备改动时,土建工程也随之而改动,并会影响通风,照明等工程。5. 因此制剂厂布置要按照可行性研究报告的研究结果确定产品方向和规模,按GMP标准开展设计。

6. 室外实际参数的内容包括稳定和相对湿度,室外风速和年主导风向及频率,大气压力,室外大气尘,厂房周围的环境情况等。7. 室内计算参数包括室内温度湿度基数及其允许波动范围,室内空气洁净度,流速,噪声,振动及压力等。8. 洁净地区和污染地区室外大气尘浓度可相差十倍至几十倍,这就造成了高效过滤器使用寿命有的1—2年,而有的却高达10年之久的差别,此外,如果室外环境特别干净,若达到1000级洁净度,末级过滤器可以不采用高效过滤器,而采用中效过滤器或亚高效过滤器,但在污染地区则完全不可能。9. 设备对工艺的先进性,对洁净影响都很大,尤其是制剂生产。10.工艺对设备的选择除了材料外,还要尽量选择密闭,自动化,联动化,以减少操作工序和操作人员,清除污染来源,并且设备一定要便于清洗和拆除,这样才能符合GMP要求。

11.根据投资省,上马快,能耗少,工艺路线紧凑等要求,制剂厂建造一单层大面积厂房最为合适,若再设计为无窗厂房就更理想。12.在初步设计阶段,完成了无量衡算和热量衡算后,还要进行管道计算,其主要内容是进行管径计算和选择管材。
特别声明:以上内容(如有图片或视频亦包括在内)为自媒体平台“网易号”用户上传并发布,本平台仅提供信息存储服务。
首款民用卫星上网终端面市,天线面积比马斯克“星链”少20%但性能提升2倍
太突然!深圳知名教育机构宣布:闭店,暂时关闭退费通道!有家长4月才充值10万元,总裁回应:个人已输血上千万,不会躺平
萌娃到了晚上找妈妈,娃爸抱着委屈的样子太好笑了,这就是和一个不喜欢的人在一起的感觉